27周年記念モデル (未来・アーバン系)
規格提案型住宅
■■■ 土間のある暮らし ■■■
|
土間床リビング・制震システム・構造計算・発泡断熱材
吹抜け階段・本棚付ミセスコーナー・独立した工事監理
を特徴とする、シンプルモダンな住宅です |
設計監理費用を含む、本体工事費 1,460万円(税込)
|

|
|
|
|

|
|
|
|

|
|
|
|
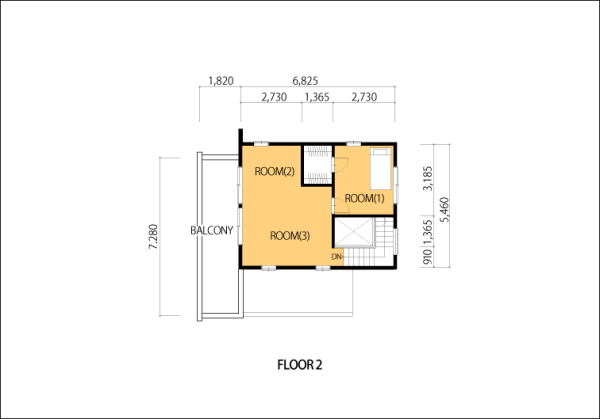
■ 空間密度を凝縮した、機能優先と遊び心のある 「2×4工法」 コンパクトサイズ
法床面積 89.43u ( 27.05坪 )
施工床面積 107.18u ( 32.42坪 )
■ 「土間のある暮らし」 では上記の施工床面積32.42坪の他、35.80坪、37.31坪、39.19坪、41.07坪、43.32坪
のプランをご用意しております
■ 設計監理費用を含む建築コスト、1.460万 (税込) はローコスト住宅ではありません
施工床面積での坪単価は1.460万/32.42坪=45.03万/坪、
建築基準法床面積での坪単価は1.460万/27.05坪=53.97万/坪になり、適正価格です
■ 現場発泡断熱材 「フォームライトSL」 ( 壁80ミリ、小屋180ミリ ) を標準施工
■ 耐震等級 「3」 での許容応力度構造計算書付、地震保険料が約3割ダウン
■ 制震システム 「GVA」 (ジーバ) を標準施工
■ 省令準耐火構造のため、火災保険料が普通の木造住宅の約半分
■ 2階のスペースに、納戸、トイレ、書斎などが設置可能
■ バルコニーの広さは8帖 ( 1.820×7.280 )
■ 1階ミセスコーナーは、造作デスク、本棚付
■ シューズインクロークの棚は可動式
■ 高耐久ベタ基礎
■ 外壁はガルスパン NEO−J フッ素 ( アイジー工業 )
■ 全室アルミ遮断熱ペアガラスサッシ、高断熱玄関ドア
■ 1階土間部分は300角タイル貼り
■ キッチンやユニットバスなどの設備機器は、各ショールームにて選択できます
■ 別途工事項目
屋外給排水工事、軟弱地盤における基礎補強工事、冷暖房・ガス工事、照明器具、太陽光発電工事、
カーテン・ブラインド等の工事、エクステリア工事、植栽工事など
■ 広告、宣伝、展示場、営業マンなどがないため、リーズナブルなコストを実現
■ コストのほぼ全てを、設計費、構造計算費、工事監理費、工事費、材料費に投入
■ 1級建築士事務所 安藤建築設計事務所による、第3者工事監理
工事監理報告書は 「基礎工事完了時」 「上棟時」 「造作工事完了時」 「竣工時」 の4回に別けて、
詳細の写真と共にお渡しいたします
写真を含めたこれらの資料は、将来のリノベーションのときに役立ちます
工事監理の独立性で、設計施工分離スタイルのメリットが最大限生かせます
■ 地盤保証、住宅性能評価による第三者保証付
|
規格提案型住宅
■■■ ボイジャー ■■■
その姿は、遥かなる宇宙の長旅を終えた宇宙船 「ボイジャー」 が、無事に地球へと帰還した瞬間を捉えています。
建築にロマンを求める方のために、デザインしました。
設計監理費用、地盤調査費用、許容応力度構造計算費用を含む
本体工事費 1,888万円(税込)
|

|
|
|
|

|
|
|
|

|
|
|
|
■ 家族構成4人を標準想定しております
法床面積 107.42u ( 32.49坪 )
施工床面積 135.52u ( 40.99坪 )
■ 構造、断熱、制震、耐久などハイスペックな内容になっています
■ 別途項目
1 屋外給排水工事費 ( 水道取出し工事費用等も含みます )
2 軟弱地盤における基礎補強工事費
3 敷地に高低差がある場合の土留め工事費
4 冷暖房、ガス工事費
5 照明器具
6 カーテン、ブラインド等の工事費
7 エクステリア工事費
8 太陽光発電工事費
9 プラン、スペック等の変更による追加工事費
10 水道負担金等の各種納付金
11 建築確認申請費用及び竣工検査費用
12 建築地が、市街化調整区域等の場合の申請費用
13 表示、保存登記費用
14 ご入居後の火災、地震保険料 (省令準耐火構造)
15 ローン保証料
16 引越し費用
|
規格提案型住宅
■■■ クウォーターバウンズ ■■■
趣味を満喫する「離れ」 + 2×6工法 + 制震システム
設計監理費用を含む、本体工事費 1,540万円(税込)
|

|
|
|
|
★★★★★ 2×6工法 ★★★★★
( 壁の厚さは2×4工法の約1.57倍 89ミリ → 140ミリ )
(社) 日本ツーバイフォー建築協会
|
|

|
|
|
|

|
|
|
|
■ 家族構成4人を標準想定しております
法床面積 108.42u ( 32.80坪 )
施工床面積 130.70u ( 39.54坪 )
■ 現場発泡断熱材 「 フォームライトSL 」 壁120ミリ、小屋180ミリ 標準施工
■ 太陽光発電の搭載が容易な、シンプルな屋根形状
■ 地震の震動エネルギーを熱エネルギーに変える 「GVA」 (ジーバ) を標準搭載
■ 全室アルミ遮断熱ペアガラスサッシ
■ 高耐久ベタ基礎
■ 2階のプランは、さまざまに展開可能です
■ 省令準耐火構造のため、火災保険料が普通の木造住宅の約半分
■ ラウンドウォールを見ながらのアプローチです
■ ラウンドウォール部分の壁仕上げは 「ベルアート・シリコン仕様」 (エスケー化研)
■ ビルトインサイクルポート
■ キッチンやユニットバスなどの設備機器は、各ショールームにて選択できます
■ 広告、宣伝、展示場、営業マンなどがないため、リーズナブルなコストを実現
■ コストのほぼ全てを、設計費、構造計算費、工事監理費、工事費、材料費に投入
■ 1級建築士事務所 安藤建築設計事務所による、第3者工事監理
工事監理報告書は 「基礎工事完了時」 「上棟時」 「造作工事完了時」 「竣工時」 の4回に別けて、
詳細の
写真と共にお渡しいたします
写真を含めたこれらの資料は、将来のリノベーションのときに役立ちます
工事監理の独立性で、設計施工分離スタイルのメリットが最大限生かせます
■ 地盤保証、住宅性能評価による第三者保証
|
規格提案型住宅
■■■ ザ・シェイプス ■■■
2×6工法・耐震構造 + 制震システムを標準搭載
設計監理費用を含む、本体工事費 1,350万円(税込)
耐震等級 「 3 」 での許容応力度構造計算書付
制震システム 「 ジーバ 」 を標準搭載
地震の震動エネルギーを熱エネルギーに変える 「 ジーバ 」 のウェブサイトへGO
|
|
|
■ 背伸びをしない ジャストサイズ
法床面積 88.67u ( 26.82坪 )
施工床面積 97.18u ( 29.40坪 )
■ 現場発泡断熱材 「 フォームライトSL 」( ドイツ ) 壁100ミリ、小屋180ミリ 標準施工
フォームライトSL のウェブサイトへGO
■ 太陽光発電の搭載が容易な、シンプルな屋根形状
■ 2階のマルチスペースに、納戸、トイレ、書斎などが設置可能
■ 道路から見えにくいオープンバルコニー
■ 将来DKの前に、増築が可能です
|
|
■ 地震に強い 2×4工法 ( 一部2×6工法 )
(社) 日本ツーバイフォー建築協会のウェブサイトへGO
■ 省令準耐火構造のため、火災保険料が普通の木造住宅の約半分
■ 耐震等級 「 3 」は、地震保険料が約3割ダウン
■ 全室照明器具設置
■ キッチンやユニットバスなどの設備機器は、各ショールームにて選択できます
■ 広告、宣伝、展示場、営業マンなどがないため、リーズナブルなコストを実現
■ コストのほぼ全てを、設計費、構造計算費、工事監理費、工事費、材料費に投入
■ 1級建築士事務所 安藤建築設計事務所による、第3者工事監理
■ 地盤保証、住宅性能評価による第三者保証
|