LOHASな家 2006 つくば 

 

「天然木に包まれた癒しの内部空間」・・・を実現させるために、平面的な空間構成もさることながら、建築素材の選定に充分な調査および検討に時間が費やされた夫婦二人と愛猫のための超快適住宅です。構造は当初から、気密、断熱、耐震の観点から枠組壁工法で決まっています。断熱材として採用しているアップルゲートセルロース断熱材は、原料がパルプで木の繊維であるセルロースには湿気を吸放出する性質があり、加えて防カビ・防虫の効果にホウ酸が添加されているすぐれものです。断熱材の工事には1週間費やしています。(通常は1日か2日で終ります)土台の防腐、防蟻には、リボス社のアンドラを、そして塗装に使われる塗料については、内部の階段、ドア、枠、カウンター及び外部のブラジル産イペやウェスタンレッドシダ−で統一感あるデザインで構成されたデッキやプランターボックス、バルコニーには同じくドイツのオスモカラーを指定しています。床は全て無垢のスウェーデンパインフローリングで、壁は珪藻土と、板張りのところはやはり無垢のスウェーデンパインで、生成りの「白」とナチュラルな「天然木」でコントラストを出しています。化学合成された建材、すなわち合板フローリングや塩ビシートの建具や巾木を極力排除したのも「癒しの内部空間」を表現するためには自然の選択でした。階段材も集成材でなく無垢の構造材を加工してそのまま使用しています。角は全てR加工させています。大工からすれば、集成材の段板をチョコッと取り付けてしまえば楽なのでしょうが、ここでは少し骨を折ってもらいました。


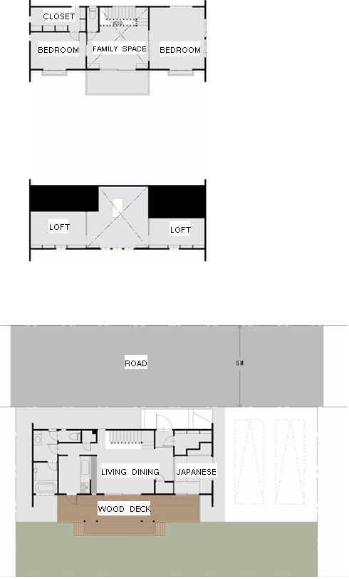
小さいながらも吹き抜けから階段を上って2階のホールに行くと、そのホールの両側の小屋裏まで続く現場造作の造りつけの本棚が圧巻です。たまにしか見ない本や捨てられない本は小屋裏へ、しばしば読む本は手元におけるよう機能的な設計にしています。文庫本2000冊、ブルータス2000冊(まだ607号です)が楽に収まります。文庫、新書、A4、美術全集などがぴったり入るように設計しており棚板は固定式です。固定式ですから両側の金物が不要なためすっきりとした納まりになっています。さらにそこにはオーナーの愛猫が運動不足にならないよう2階ホールの両側の本棚に穴を開けてキャットウオークを特別に造ってあげました。右の小屋裏から左の小屋裏へ、(約4.5メートルの距離です)気分によって左から右へ、おなかが空いたらまた右から左へと自由に行き来できますが、調子に乗ってハシゴから落ちないようにしてください・・・ネ。このホールの勾配天井には大型のスカイライトも付いていまして、冬の寒い日に(この家の1階には温水式床暖房が設置されていて寒くないのですが)そこから差し込む日差しで日向ぼっこも出来るよう愛猫にとっては至れり尽くせりです。


それにしてもご苦労様でした。職人さんにですか?・・・いいえ違います。オーナーさんにです。8月の蒸し暑い日にこの本棚の塗装を全てやっていただきました。盆休みと土、日の休みのスケジュールをうまく組んでいただいて珪藻土のコテ仕上もあわせて施工してもらいました。よく言われるところの「BUILT BY HAND」オーナー参加型の手づくり住宅です。専門職人の指導もバッチリでしたので、とても素人がやったものだとは判らないくらい、味わいのある仕上になりました。年月の経過とともにますます愛着が増すことでしょう。キッチン前のモーニングカウンターは、栗の木の一枚板をオーナーが市場から調達してやや高めに大工さんに取り付けてもらいました。浴室前の木製目隠しフェンスも、材料をオーナー自ら調達して組み立てまでやって頂きましたが、風が吹いてすっ飛んでしまうと大変ですので、最後の取り付けは大工さんにお願いしました。

2Fロフト
1F

 

 

もともと高性能な枠組壁工法では利用する方が少ないといわれている「住宅性能表示制度」に登録し、「住宅性能保証制度」とあわせて現場における品質管理には重点が置かれています。工事中の記録写真は軽く1000枚を超え工事監理報告書と共に最後にオーナーに渡されます。設計図書、工事中の打合せ記録、地盤調査報告書、建築確認通知書、完了検査済証と共に大切に保管しておいてください。あっ、もうひとつ忘れていました。基本設計に入るまでの落書きのようなスケッチも忘れないで下さい。世界にひとつですから・・・・

 


構造・規模

枠組壁工法2階建て(ダブルロフト付)

敷地面積 322.16u
建築面積 66.24u
延床面積(法床) 114.27u
延床面積(施工) 143.04u
設計期間 2005年11月から2006年5月
工事期間 2006年5月から2006年11月
特徴・仕様  住宅性能表示登録住宅  住宅性能保証登録住宅
ダブルロフト  外壁ガルスパン
1階全室温水式床暖房  防蟻アンドラ
アップルゲートセルロース断熱材
1階壁珪藻土(エコクイーン)
LDK、2階ホール壁無垢パイン板張り
手作りプランタン  塗料オスモカラー
全室床無垢パインフローリング  造作本棚
スカイライト  ウォークインシューズクローク
小上がり和室  2階ホール勾配天井
イペ&レッドシダー現場製作バルコニー
建築工事費  2000万円台(屋外給排水工事、家具工事、ガス工事、床暖房、エアコン、デッキ、照明含む)
関連ページ NEW 工事を見る(屋根・外壁工事)2006.10.16
NEW 工事を見る(断熱・造作工事)2006.6.29
NEW 工事を見る(基礎工事)2006.5.26