|
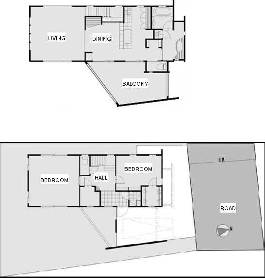
太さ19ミリの鉄筋で吊られた階段を上ると、生活の中心である2階です。白い誘惑という言葉がぴったりな空間です。地中海の波のイメージである「ウェーブ」がところどころに現れてきます。「ウェーブ」ですからクロスなんて貼れませんし似合いません。壁は全て珪藻土のコテ仕上げです。クロスの3倍くらいのコストがかかります。効果、効用そして手間を考えれば当然のコストといえます。下地から仕上げまで時間をかけて丁寧に施工してもらいましたが、一部僕が気に入らないところがありましたので、気に入るまで何度もコテで押えてもらいました。押えすぎてはみ出したところは、削ってまた滑らかにするという感じです。ご苦労様でした。そうこうして、南仏の山間の素朴な小さな家のような仕上がりとなりました。小さいといってもここのリヴィングとダイニングをあわせると、ちょうど20帖で充分な広さです。その部分は3寸の屋根に沿って勾配天井としているため実際よりさらに広く感じます。1階に広い納戸を設けているためロフトは作らずここでは勾配天井を最優先しました。
|

|

|
さて、いよいよキッチンです。世界でただひとつの手作り製作キッチンに立つとダイニング、リヴィングが全貌されます。子供を見ながらキッチンに立てるため母親は安心です。ダイニングのコーナーにはウェーブデザインのパソコンカウンターもあわせて製作しましたので、レシピもそこから引出せます。献立作りが楽しみです。キッチンのIHコンロはビルトイン式でなく、カウンターの上に自由に置けるものを3つ採用しています。冬の鍋料理の時にはそのうちの一つをダイニングテーブルに持っていくことができます。一つだけシンクに近づけることもできます。ミセスの使い勝手に合わせて置く場所を決めてください。移動の理論です。したがってキッチンのタイルの目地が壁まで一直線に続いて見えるわけです。汚れ物はとてもそこには置いておけません。整然とした感じです。混沌とした文科系というより理科系的です。授業をサボれる文科系でなくそこではさぼれません。チョッとつらいです。でも理科系の僕は平気でサボっていましたが・・・・。代返を頼んだやつが返事をしないで落としたドイツ語が記憶に蘇えります。代返といえども男の約束ですから守らなければなりません。キッチンの奥行きは1.1メートルありますので、そこはモーニングカウンターを兼ねています。忙しい朝は、さっと作って、さっと出し、すぐそこで洗えるよう親切設計になっています。なおスレンダーで長身の奥様に合わせて、キッチンの高さは875ミリメートルに設定しています。90センチだとちょっと高すぎる、既成のキッチンの85センチだとやや低いといった問題を解決しています。それからシンクの下は幅1.1メートルのオープンな空間としていますので、そこは分別ゴミの置き場となります。においが気になるときは、すぐ横のロンプルーフシート防水で保護された広さ11帖大のバルコニーに収集日まで置いておいてください。ここで使われた珪藻土はにおいもある程度吸収するため気にならないと思いますが。キッチンと同じく4つの引き出しがついた手作りバックキャビネット、冷蔵庫の横のパントリーと合わせて充分な収納計画も実施設計のときに詳細を詰めていきます。引き出しの幅や高さ、扉を付ける、付けない、付けるとしたら引戸か開きか、中の棚の奥行きの寸法、棚を固定式にするか可動式にするか、そこでの動作そして機能性を考えながら決定していきます。効率的で変化に対応できるような収納計画をすることによって、理科系的なキッチンが成立したわけです。
キッチンのバックヤードに2階の水周りの全てをミセスの動線に沿って配置した、効率重視の平面計画も特徴のひとつです。廊下のような部分もないため、2階の面積配分を各部分に有効に振り分けることができました。パウダールームが3帖以上の広さにできたのも、廊下を造らなったことによります。ここでは一転して「白」の世界から、南仏の古民家の天然木の世界に変わります。床、壁、カウンター、窓枠そして建具など無垢の木の部分は全てオスモカラーのウッドワックスで塗装しています。鄙びた雰囲気がでています。色むらがなんともいえず気持ちを和やかにしてくれます。パウダールームには手作り洗面ウェーブカウンターを中心に、タオル収納、ドラム式洗濯機、クロークが配置され、一番奥が風呂の入り口になります。さあ、一日の疲れをここで癒してくださいませ。
|